DIMPLEX -AIR/EAU - LA17TU - flashgordon [EN COURS]
-
flashgordon
- Actif

- Messages : 20
- Enregistré le : jeu. oct. 25, 2007 8:14 pm
- Travaillez-vous dans le domaine des énergies ou du chauffage : Non
DIMPLEX -AIR/EAU - LA17TU - flashgordon [EN COURS]
Bonjour
Je vous présente ma future installation d’une DIMPLEX LA17TU. dans le 28
L a maison sera de 286 m² (garage compris) sur deux niveaux –le rez de chaussé de 152 m² et l’étage de 134 m² tout deux en plancher chauffant rehau. Cuisine, salon, les chambres, bureau et coin télé en régulation pièce par pièce.
J’ai créé un blog pour ma famille qui souhaitait suivre l’avancé voici le lien http://www.blog-construction.com/ruffrayteam/
Construction traditionnelle en parpaing avec isolation doublage de 140mm en périphérie sur les deux niveaux, au sol hourdis avec dalle plane de 100mm, a l’étage dalle plane de 30mm et isolation des combles avec 100+140 de laine de verre.
Vmc double flux Atlantic duolix max avec conduit spiralé bientôt isolé.
J’ai calculé environ 15 kW de déperdition avec un point de bivalence a -4°
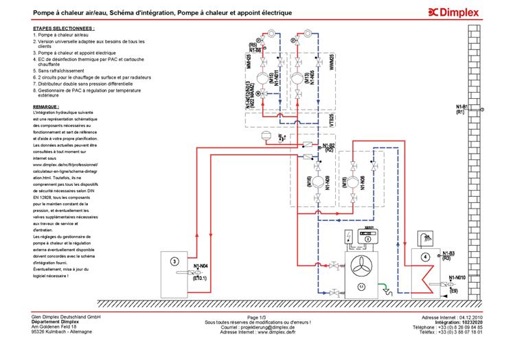
J’ai prévu une DIMPLEX LA17TU Triphasé avec ballon tampon de 200litres avec résistance électrique de 2.9kw et un préparateur de 400 litres avec résistance de 2 – 2.7 – 4kw commutable. Le tout alimenté par 2 calculateur Sirius junior 3m (dans des modules MMH25 et WWM25) pour les deux plancher, un UP70-32 (pour le module DDV32 qui alimente le ballon tampon) et un NXL 53-25 (dans un WWM25 pour le sanitaire).de plus je prévois un calculateur de bouclage sanitaire géré par la régule et un aquastat RAK TR1000B.
le schémas d’intégration porte le numéro 10232020 chez DIMPLEX (je n'arrive pas a le mettre sur le forum image en PDF)
http://www.dimplex.de/nc/fr/professionn ... ation.html
En étudiant les différents sujets, j’installerais un port Ethernet NWPM connecté au réseau de la maison.
J’installe moi même tout le chauffage.
j'attends vos avis et vos commentaire
merci d'avance
Je vous présente ma future installation d’une DIMPLEX LA17TU. dans le 28
L a maison sera de 286 m² (garage compris) sur deux niveaux –le rez de chaussé de 152 m² et l’étage de 134 m² tout deux en plancher chauffant rehau. Cuisine, salon, les chambres, bureau et coin télé en régulation pièce par pièce.
J’ai créé un blog pour ma famille qui souhaitait suivre l’avancé voici le lien http://www.blog-construction.com/ruffrayteam/
Construction traditionnelle en parpaing avec isolation doublage de 140mm en périphérie sur les deux niveaux, au sol hourdis avec dalle plane de 100mm, a l’étage dalle plane de 30mm et isolation des combles avec 100+140 de laine de verre.
Vmc double flux Atlantic duolix max avec conduit spiralé bientôt isolé.
J’ai calculé environ 15 kW de déperdition avec un point de bivalence a -4°
J’ai prévu une DIMPLEX LA17TU Triphasé avec ballon tampon de 200litres avec résistance électrique de 2.9kw et un préparateur de 400 litres avec résistance de 2 – 2.7 – 4kw commutable. Le tout alimenté par 2 calculateur Sirius junior 3m (dans des modules MMH25 et WWM25) pour les deux plancher, un UP70-32 (pour le module DDV32 qui alimente le ballon tampon) et un NXL 53-25 (dans un WWM25 pour le sanitaire).de plus je prévois un calculateur de bouclage sanitaire géré par la régule et un aquastat RAK TR1000B.
le schémas d’intégration porte le numéro 10232020 chez DIMPLEX (je n'arrive pas a le mettre sur le forum image en PDF)
http://www.dimplex.de/nc/fr/professionn ... ation.html
En étudiant les différents sujets, j’installerais un port Ethernet NWPM connecté au réseau de la maison.
J’installe moi même tout le chauffage.
j'attends vos avis et vos commentaire
merci d'avance
- nappe phreatique
- Resp. Section

- Messages : 2383
- Enregistré le : mer. déc. 21, 2005 1:16 pm
- Localisation : 63
- Travaillez-vous dans le domaine des énergies ou du chauffage : Non
Salut Flash,
Joli projet !
Vu le gabarit de la maison, il serait judicieux de faire faire une étude thermique par un BE specialisé, soit dircetement, soit par l'intermediaire de l'installateur si c'est un bon qui a l'habitude de travailler avec les BE.
Quelques calculs rapides semblent montrer qu'une 17 TU de chez Dimplex serait une machine quelque peu surpuissante pour une maison NEUVE de 260 m2 chauffé, dans un departement doux, avec une isolation de 140 mm sur les murs et 240 mm au plafond, PC intégral, VMC double flux....
15 kW, cela correspond à un G d'un peu plus de 0,8, ce qui est vraiment pessimiste pour une maison neuve, qui plus est de bonne taille (Le G s'améliore physiquement avec la taille de la maison, toutes choses egales par ailleur).
Il serait plus judicieux de passer à 300 mm d'isolant au plafond, et de faire faire une vraie étude thermique qui risque bel est bien de vous annoncer une bonne nouvelle, du genre "10 kW suffisent à chauffer votre maison à la température de base".
Bonjour les économies d'investissement !
Joli projet !
Vu le gabarit de la maison, il serait judicieux de faire faire une étude thermique par un BE specialisé, soit dircetement, soit par l'intermediaire de l'installateur si c'est un bon qui a l'habitude de travailler avec les BE.
Quelques calculs rapides semblent montrer qu'une 17 TU de chez Dimplex serait une machine quelque peu surpuissante pour une maison NEUVE de 260 m2 chauffé, dans un departement doux, avec une isolation de 140 mm sur les murs et 240 mm au plafond, PC intégral, VMC double flux....
15 kW, cela correspond à un G d'un peu plus de 0,8, ce qui est vraiment pessimiste pour une maison neuve, qui plus est de bonne taille (Le G s'améliore physiquement avec la taille de la maison, toutes choses egales par ailleur).
Il serait plus judicieux de passer à 300 mm d'isolant au plafond, et de faire faire une vraie étude thermique qui risque bel est bien de vous annoncer une bonne nouvelle, du genre "10 kW suffisent à chauffer votre maison à la température de base".
Bonjour les économies d'investissement !
-
Amicalement,
François
Double PAC O/O Nibe
http://www.chaleurterre.com/wiki/doku.p ... phreatique
Bureau d’Étude spécialisé dans la rénovation chauffage des grandes demeures.
Amicalement,
François
Double PAC O/O Nibe
http://www.chaleurterre.com/wiki/doku.p ... phreatique
Bureau d’Étude spécialisé dans la rénovation chauffage des grandes demeures.
-
flashgordon
- Actif

- Messages : 20
- Enregistré le : jeu. oct. 25, 2007 8:14 pm
- Travaillez-vous dans le domaine des énergies ou du chauffage : Non
Merci pour ta réponse
Je suis d'accord avec tes calcules, mais ce que j'ai oublié de préciser, j’ai déjà la PAC depuis juillet 2010 afin d'éviter les différentes hausse de tarif de dimplex.De plus j'ai privilégié un bi-compresseur, soit un surcout a l'achat mais normalement je fonctionnerais la plus part du temps avec un compresseur de environ 8 kW.
Je suis d'accord avec tes calcules, mais ce que j'ai oublié de préciser, j’ai déjà la PAC depuis juillet 2010 afin d'éviter les différentes hausse de tarif de dimplex.De plus j'ai privilégié un bi-compresseur, soit un surcout a l'achat mais normalement je fonctionnerais la plus part du temps avec un compresseur de environ 8 kW.
- nappe phreatique
- Resp. Section

- Messages : 2383
- Enregistré le : mer. déc. 21, 2005 1:16 pm
- Localisation : 63
- Travaillez-vous dans le domaine des énergies ou du chauffage : Non
Ah ok, si tu as déja la PAC, ça change tout...flashgordon a écrit :Merci pour ta réponse
Je suis d'accord avec tes calcules, mais ce que j'ai oublié de préciser, j’ai déjà la PAC depuis juillet 2010 afin d'éviter les différentes hausse de tarif de dimplex.De plus j'ai privilégié un bi-compresseur, soit un surcout a l'achat mais normalement je fonctionnerais la plus part du temps avec un compresseur de environ 8 kW.
De toute façon, c'est un excellent modèle, si ce n'est le meilleur de sa catégorie, et comme tu dis, c'est du bi-compresseur, donc pas de pb de court cycle.
Reste plus qu'a agrandir la maison pour justifier cette superbe PAC
-
Amicalement,
François
Double PAC O/O Nibe
http://www.chaleurterre.com/wiki/doku.p ... phreatique
Bureau d’Étude spécialisé dans la rénovation chauffage des grandes demeures.
Amicalement,
François
Double PAC O/O Nibe
http://www.chaleurterre.com/wiki/doku.p ... phreatique
Bureau d’Étude spécialisé dans la rénovation chauffage des grandes demeures.
-
flashgordon
- Actif

- Messages : 20
- Enregistré le : jeu. oct. 25, 2007 8:14 pm
- Travaillez-vous dans le domaine des énergies ou du chauffage : Non
-
flashgordon
- Actif

- Messages : 20
- Enregistré le : jeu. oct. 25, 2007 8:14 pm
- Travaillez-vous dans le domaine des énergies ou du chauffage : Non
- dbercy
- Modérateur

- Messages : 4951
- Enregistré le : mar. déc. 25, 2007 11:08 am
- Localisation : Yvelines
- Travaillez-vous dans le domaine des énergies ou du chauffage : Non





mon installation